Kommende projekter
Niels Brocks Gade, Randers

I centrum af Randers opføres nye moderne ungdomsboliger og lejligheder. Alle boliger er med eget køkken og bad.

25 ungdomsboliger der alle er 2-værelses og 36 lejligheder fordelt på 3- og 4-værelses boliger.

Her er adgang til parkeringskælder og depotrum samt cykelparkering. Dejlige grønne områder med opholdsarealer og legeplads.
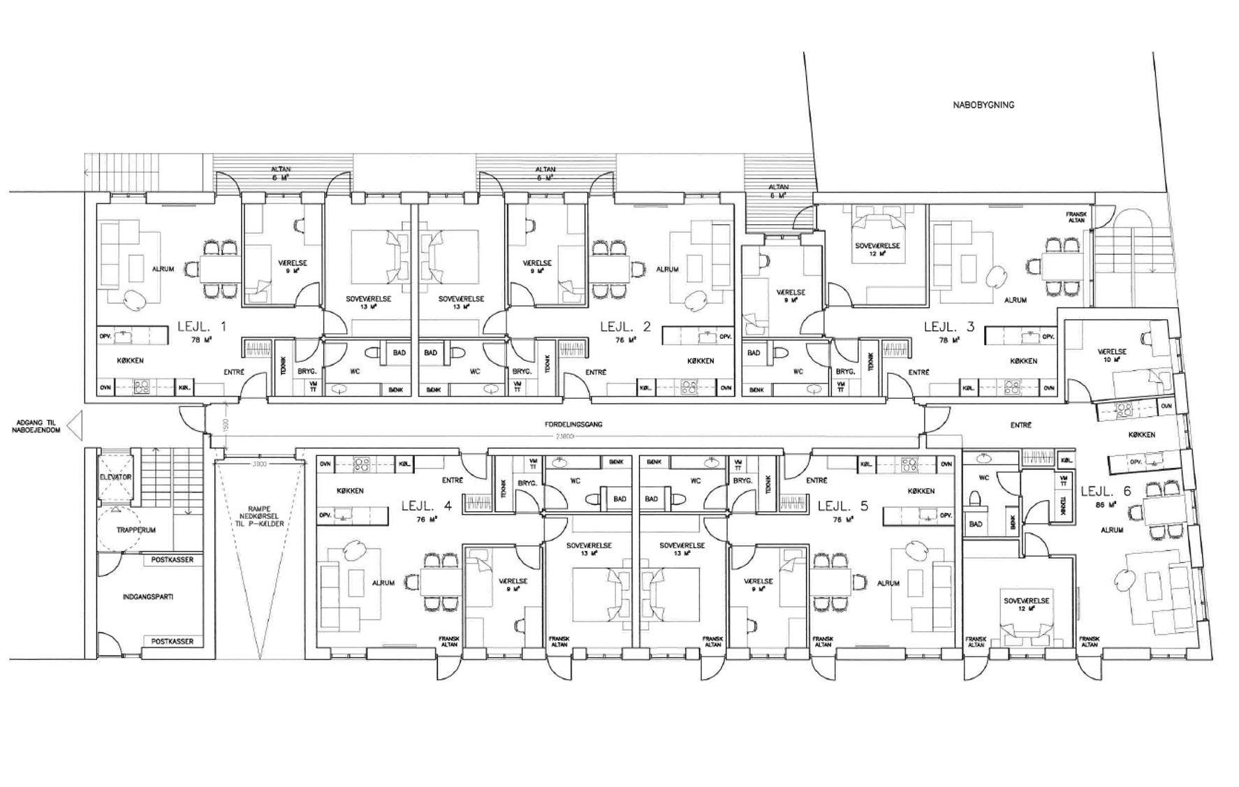
Rosenørnsgade, Randers

I centrum af Randers opføres 36 moderne lejligheder. Ejendommen er beliggende med de nye lejligheder i Niels Brocks Gade som nabo.

Lejlighederne er fordelt på 3- og 4-værelses boliger. Alle lejligheder er med åbent køkken-alrum og fransk altan.

I ejendommen er der adgang til parkerings- og cykelkælder samt depotrum.
Sømoseparken, Ballerup

I skønne grønne omgivelser i Ballerup opføres 36 moderne ungdomsboliger. Ejendommen opføres på samme grund som eksisterende ejendom med 100 ungdomsboliger.

Lejlighederne er fordelt på 1- og 2-værelses boliger. Alle lejligheder er med eget køkken og bad samt enten terrasse eller fransk altan.

I ejendommen er der adgang til cykelparkering og depotrum.

